農林会館
ここに注目!盛岡城跡を臨む大型ビル!リノベーション工事完了!リフレッシュルームや喫煙ルームなど充実の共用♪
| 賃料・費用 |
43万2,100円
(+管理費等 -円)
坪単価:約8,250円/坪
敷235万6,910円礼なし仲43万2,100円
|
|---|---|
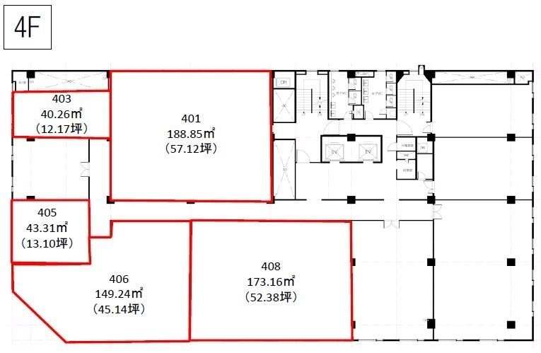
| 専有面積 | 173.19m² (52.38坪) |
| 住所 | 岩手県盛岡市菜園1丁目3-6 |
| 交通 | 盛岡駅(徒歩14分)|上盛岡駅(徒歩17分) |
| 階/階建 | 4階 / 13階建 |
| 築年月 | 築59年(1966年12月) |
| 駐車場 |
空き待ち
|
空室確認、見学、詳細を知りたい方はこちら!
お電話の際は「連合隊の物件」とお伝えください。
情報掲載期限:あと19日(更新日 2026/2/16)
- 物件写真・概要
- 周辺地図
-
空室確認、見学、詳細を知りたい方はこちら!
おすすめポイント
- 即入居可
- 複数路線利用可
- 男女別トイレ
- OAフロア
交通色がついているアイコンをクリックすると、本物件までの道順を見ることができます。
物件概要
所在階/建物の階建 4階(408) / 地上13階建 主要採光面 構造 鉄筋コンクリート(RC)造 間取り 契約期間 2年間 権利金 住宅保険 引渡し 即時 管理人 取引態様 仲介 物件No 設備・特徴 - 複数路線利用可
- 男女別トイレ
- OAフロア
- 個別空調
- 24時間利用可
- その他:ウォシュレット・エレベーター
備考 事務所 アスベスト改修工事により撤去済み 耐震補強工事実施中 水光熱費別途請求 敷地内にコインパーキングあり 主な周辺施設色がついているアイコンをクリックすると、本物件までの道順を見ることができます。
-
ホームページはこちら
宮城県知事 (9) 第3195号
(株)エンタツ
※連合隊は物件情報の精度向上に努めています:「物件情報に誤りがある」「成約済みである」などお気付きの点がございましたらこちらよりご連絡ください。
写真枚数:17枚
他区画写真
他区画写真
他区画写真
他区画写真
リフレッシュルーム
喫煙室
小会議室
大会議室
仙台市近郊の事務所・店舗はエンタツへご相談ください♪
東北の玄関口、仙台駅から徒歩3分の店舗です! また当ビルは自走式駐車場も完備しておりますので、電車・新幹線・車でも来店しやすい環境でお待ちしております♪