VIP仙台二日町
ここに注目!仙台市営地下鉄南北線「北四番丁駅」まで徒歩5分、「勾当台公園駅」まで徒歩6分と、主要駅へアクセスしやすい好立地。県庁・市役所もすぐそばで、ビジネス拠点として優れた環境です。 共用部はリニューアル済みで、清潔感のある空間が広がります。室内は広々42.64㎡、個別空調やOAフロアを完備しており、快適なオフィス環境をサポート。1階東向きで明るい雰囲気も魅力です。 周辺にはコンビニ(徒歩1分)、スーパー(徒歩2分)、銀行、市役所など生活利便施設が充実しており、日々の業務をスムーズに進められます。 喫茶・カフェ、小売・物販、教育・スクールなど、多様な業種におすすめです。
この物件の契約期間は 5年間です。
定期借家物件は、賃貸借契約期間満了後、原則として契約の更新ができない物件です。再契約の可否については不動産会社にお問合せください。
| 賃料・費用 |
18万4,327円
(+管理費等 -円)
坪単価:約1.4万円/坪
敷201万840円礼なし仲18万4,327円
保証金:なし
|
|---|---|
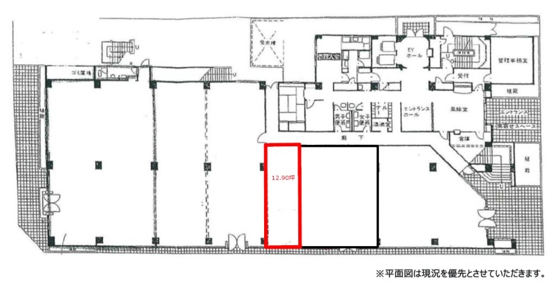
| 専有面積 | 42.64m² (12.89坪) |
| 住所 | 宮城県仙台市青葉区二日町6-26 |
| 交通 | 北四番丁駅(徒歩5分)|勾当台公園駅(徒歩6分)|広瀬通駅(徒歩14分)|青葉通一番町駅(徒歩16分)|仙台駅(徒歩23分)道順を見る |
| 階/階建 | 1階 / 9階建(地下1階) |
| 築年月 | 築29年(1996年2月) |
| 駐車場 |
あり
|
【WEB面談可】
空室確認、見学、詳細を知りたい方はこちら!
お電話の際は「連合隊の物件」とお伝えください。
情報掲載期限:あと25日(更新日 2025/12/10)
- 物件写真・概要
- 周辺地図
-
【WEB面談可】
空室確認、見学、詳細を知りたい方はこちら!おすすめポイント
- 即入居可
- 駅徒歩5分以内
- 複数路線利用可
- 駐車場あり
- OAフロア
- 出店するなら…この業種がおすすめ!
- 飲食全般(重飲食含む)

- 喫茶・カフェ(軽飲食)

- バー・クラブ・スナック

- 小売・物販

- 美容・健康・介護

- 医療

- 教育・スクール

- 事務所

- アミューズメント

交通色がついているアイコンをクリックすると、本物件までの道順を見ることができます。
- 北四番丁駅仙台市営地下鉄南北線徒歩5分(約385m)
- 勾当台公園駅仙台市営地下鉄南北線徒歩6分(約457m)
- 広瀬通駅仙台市営地下鉄南北線徒歩14分(約1.1km)
- 青葉通一番町駅仙台市営地下鉄東西線徒歩16分(約1.3km)
- 仙台駅JR仙石線、JR仙山線、JR仙石線、仙台市営地下鉄東西線、仙台市営地下鉄南北線、秋田新幹線、東北新幹線、JR東北本線、JR常磐線徒歩23分(約1.9km)
物件概要
所在階/建物の階建 1階 / 地上9階 地下1階建 主要採光面 東 構造 鉄筋コンクリート(RC)造 間取り 契約期間 定期借家(5年間) 権利金 なし 住宅保険 お問合せください 出店推奨業種 喫茶・カフェ(軽飲食)、小売・物販、教育・スクール 出店不可業種 接道状況 角地 用途地域 - 商業地域
引渡し 即時 管理人 取引態様 仲介 物件No 設備・特徴 - 複数路線利用可
- エレベーター
- OAフロア
- 個別空調
備考 ・賃貸保証等:加入要(要加入) ・契約形態:定期借家契約(期間:5年) ・火災保険:要加入 ・保証会社:要相談 ・耐震:新耐震基準 ・空調設備:個別空調 ・床仕様:Pタイル ・天井高:2,400mm ・駐車場:有 主な周辺施設色がついているアイコンをクリックすると、本物件までの道順を見ることができます。
-
※連合隊は物件情報の精度向上に努めています:「物件情報に誤りがある」「成約済みである」などお気付きの点がございましたらこちらよりご連絡ください。
写真枚数:2枚
テナント仲介・売買仲介 ・不動産保有・不動産コンサルティング・自社ビル貸会議室運営など幅広い事業を展開しております。仙台市一番町自社ビルにて【PARM-CITY131貸会議室】運営中
仙台市内のテナント物件を多数取り扱っております。 特に、仙台市中心部アーケード商店街の貸店舗・テナント実績も多くあります。 テナントを借りたい・貸したい方は、土屋不動産にお気軽にお問い合わせください。