佐藤強ビル1階
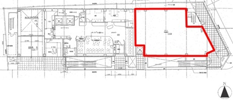
ここに注目!仙台市営地下鉄南北線「広瀬通」駅まで徒歩2分、「勾当台公園」駅まで徒歩9分と、アクセスに優れた立地が魅力。複数路線が利用可能で、ビジネスの拠点として優れた環境を提供します。 広々とした専有面積162.64㎡の1階路面店は、視認性が高く集客にも期待できます。スケルトン渡しのため、お客様の理想とする店舗空間を自由にデザイン・構築することが可能です。喫茶・カフェ、小売・物販、教育・スクールなど、様々な業種でのご利用をご検討いただけます。 周辺にはコンビニやドラッグストア、銀行、公園などが充実しており、利便性も良好です。
この物件の契約期間は 10年間です。
定期借家物件は、賃貸借契約期間満了後、原則として契約の更新ができない物件です。再契約の可否については不動産会社にお問合せください。
| 賃料・費用 |
110万円
(+管理費等 -円)
坪単価:約2.2万円/坪
敷1,000万円礼100万円仲110万円
保証金:なし
|
|---|---|
| 専有面積 | 162.64m² (49.19坪) |
| 住所 | 宮城県仙台市青葉区本町2丁目6-37 |
| 交通 | 広瀬通駅(徒歩2分)|勾当台公園駅(徒歩9分)|仙台駅(徒歩11分)|青葉通一番町駅(徒歩11分)道順を見る |
| 階/階建 | 路面 / 9階建(地下1階) |
| 築年月 | 築23年(2002年6月) |
| 駐車場 |
なし
|
【WEB面談可】
空室確認、見学、詳細を知りたい方はこちら!
お電話の際は「連合隊の物件」とお伝えください。
情報掲載期限:あと16日(更新日 2026/2/17)
- 物件写真・概要
- 周辺地図
-
【WEB面談可】
空室確認、見学、詳細を知りたい方はこちら!おすすめポイント
- 路面店
- 駅徒歩3分以内
- 複数路線利用可
- スケルトン
- 出店するなら…この業種がおすすめ!
- 飲食全般(重飲食含む)

- 喫茶・カフェ(軽飲食)

- バー・クラブ・スナック

- 小売・物販

- 美容・健康・介護

- 医療

- 教育・スクール

- 事務所

- アミューズメント

交通色がついているアイコンをクリックすると、本物件までの道順を見ることができます。
- 広瀬通駅仙台市営地下鉄南北線駅近!徒歩2分(約144m)
- 勾当台公園駅仙台市営地下鉄南北線徒歩9分(約657m)
- 仙台駅JR仙石線、JR仙山線、JR仙石線、仙台市営地下鉄東西線、仙台市営地下鉄南北線、秋田新幹線、東北新幹線、JR東北本線、JR常磐線徒歩11分(約804m)
- 青葉通一番町駅仙台市営地下鉄東西線徒歩11分(約855m)
物件概要
所在階/建物の階建 1階 / 地上9階 地下1階建 主要採光面 東 構造 鉄骨鉄筋コンクリート(SRC)造 間取り 契約期間 定期借家(10年間) 権利金 なし 住宅保険 お問合せください 出店推奨業種 喫茶・カフェ(軽飲食)、小売・物販、教育・スクール 出店不可業種 接道状況 角地 用途地域 - 商業地域
引渡し 相談(2026年4月上旬) 管理人 取引態様 仲介 物件No 設備・特徴 - 複数路線利用可
- 路面店
- スケルトン
備考 ・引渡時期:2026年4月上旬 ・引渡状態:スケルトン(相談可) ・契約形態:定期借家契約(期間:10年) ・火災保険:要加入 ・保証会社:要加入 主な周辺施設色がついているアイコンをクリックすると、本物件までの道順を見ることができます。
-
※連合隊は物件情報の精度向上に努めています:「物件情報に誤りがある」「成約済みである」などお気付きの点がございましたらこちらよりご連絡ください。
写真枚数:5枚
テナント仲介・売買仲介 ・不動産保有・不動産コンサルティング・自社ビル貸会議室運営など幅広い事業を展開しております。仙台市一番町自社ビルにて【PARM-CITY131貸会議室】運営中
仙台市内のテナント物件を多数取り扱っております。 特に、仙台市中心部アーケード商店街の貸店舗・テナント実績も多くあります。 テナントを借りたい・貸したい方は、土屋不動産にお気軽にお問い合わせください。