TKビル4階
ここに注目!地下鉄青葉通一番町駅まで徒歩5分、JR仙台駅も徒歩圏内の4階オフィス
| 賃料・費用 |
44万8,140円
(+管理費等 -円)
坪単価:約1.2万円/坪
敷244万4,400円礼なし仲44万8,140円
保証金:なし
|
|---|---|
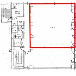
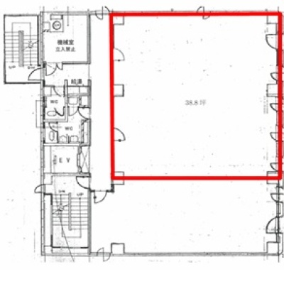
| 専有面積 | 128.27m² (38.8坪) |
| 住所 | 宮城県仙台市青葉区一番町2丁目2-11 |
| 交通 | 青葉通一番町駅(徒歩5分)|仙台駅(徒歩9分)|広瀬通駅(徒歩11分)道順を見る |
| 階/階建 | 4階 / 9階建(地下1階) |
| 築年月 | 築42年(1983年10月) |
| 駐車場 |
なし
|
【WEB面談可】
空室確認、見学、詳細を知りたい方はこちら!
お電話の際は「連合隊の物件」とお伝えください。
情報掲載期限:あと24日(更新日 2026/1/7)
- 物件写真・概要
- 周辺地図
-
【WEB面談可】
空室確認、見学、詳細を知りたい方はこちら!おすすめポイント
- 即入居可
- 駅徒歩5分以内
- 複数路線利用可
- 男女別トイレ
- OAフロア
- 24時間セキュリティー
交通色がついているアイコンをクリックすると、本物件までの道順を見ることができます。
- 青葉通一番町駅仙台市営地下鉄東西線徒歩5分(約369m)
- 仙台駅JR仙石線、JR仙山線、JR仙石線、仙台市営地下鉄東西線、仙台市営地下鉄南北線、秋田新幹線、東北新幹線、JR東北本線、JR常磐線徒歩9分(約694m)
- 広瀬通駅仙台市営地下鉄南北線徒歩11分(約860m)
物件概要
所在階/建物の階建 4階 / 地上9階 地下1階建 主要採光面 構造 鉄骨鉄筋コンクリート(SRC)造 間取り 契約期間 2年間 権利金 なし 住宅保険 お問合せください 用途地域 - 商業地域
引渡し 即時 管理人 常駐 取引態様 仲介 物件No 設備・特徴 - 複数路線利用可
- エレベーター
- OAフロア
- 24時間セキュリティー
- 男女別トイレ
- 個別空調
備考 ・契約形態:普通賃貸借契約(期間:2年) ・火災保険:要加入 ・保証会社:要加入 ・OAフロア設置 ・個別空調 ・個別機械警備 ・正面玄関開放時中は管理人常駐 正面玄関7:30-21:30まで開門(平日)8:00-20:30まで開門(土日祝) 通用口6:00-22:00まで開門(全日) 上記時間以外の出入りは、通用口より警備カード使用で24時間出入り可能 主な周辺施設色がついているアイコンをクリックすると、本物件までの道順を見ることができます。
-
※連合隊は物件情報の精度向上に努めています:「物件情報に誤りがある」「成約済みである」などお気付きの点がございましたらこちらよりご連絡ください。
写真枚数:14枚
テナント仲介・売買仲介 ・不動産保有・不動産コンサルティング・自社ビル貸会議室運営など幅広い事業を展開しております。仙台市一番町自社ビルにて【PARM-CITY131貸会議室】運営中
仙台市内のテナント物件を多数取り扱っております。 特に、仙台市中心部アーケード商店街の貸店舗・テナント実績も多くあります。 テナントを借りたい・貸したい方は、土屋不動産にお気軽にお問い合わせください。