荒井3丁目貸事務所
ここに注目!荒井三丁目【2026年10月完成予定】既存建物解体中◆駐車場8台無料◆ご要望や必要に応じて間仕切り工事が可能です◆駐車場が足りない場合は、近隣の月極駐車場6台まで紹介可能(月5,000円/台)です。 第08確認建築宮城建住00045号
| 賃料・費用 |
44万円
(+管理費等 なし)
坪単価:約9,716円/坪
敷なし礼なし仲44万円
保証金:400万円
|
|---|---|
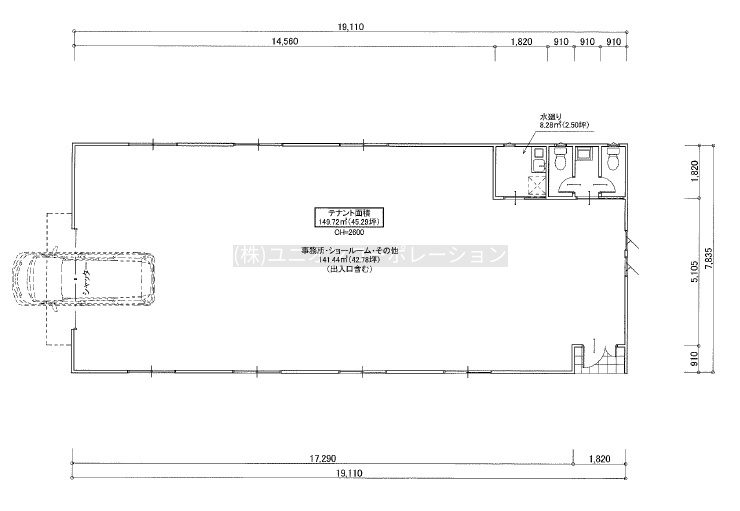
| 専有面積 | 149.72m² (45.29坪) |
| 住所 | 宮城県仙台市若林区荒井3-10-1 |
| 交通 | 仙台市営バス 「七郷市民センター」停(徒歩4分) |
| 階/階建 | |
| 築年月 | 建築中(2026年10月完成予定) |
| 駐車場 |
あり 駐車可能台数:8台
不足の場合は近隣の月極駐車所6台まで紹介可能(月5,500円/台) |
空室確認、見学、詳細を知りたい方はこちら!
お電話の際は「連合隊の物件」とお伝えください。
情報掲載期限:あと28日(更新日 2026/4/28)
- 物件写真・概要
- 周辺地図
-
▼クリックで左の拡大画像が変わります。 すべての写真を拡大
空室確認、見学、詳細を知りたい方はこちら!
おすすめポイント
- 駐車2台以上可
- 男女別トイレ
- エアコン付
- 敷金・礼金0円
交通
- 荒井駅仙台市営地下鉄東西線駅近!バス3分(約1.1km)→ 仙台市営バス 「七郷市民センター」停徒歩4分(約280m)
物件概要
建物の階建 総戸数 構造 軽量鉄骨造 間取り 契約期間 5年間 更新料/更新手数料 なし 権利金 住宅保険 土地面積 201m² (60.8坪)接道状況 角地 用途地域 - 第2種住居地域
引渡し 2026年11月下旬 管理人 取引態様 仲介 物件No 設備・特徴 - 角地
- 照明器具付
- 給排水設備
- エアコン付
- 男女別トイレ
備考 賃貸保証システム要加入(初回のみ賃料1カ月分) 借家人賠償保険要加入(借主様手配にて) 主な周辺施設色がついているアイコンをクリックすると、本物件までの道順を見ることができます。
-
ホームページはこちら
宮城県知事(6) 第4875号
(株)ユニオンコーポレーション- 加入団体
- (公社)全日本不動産協会
- 保証協会
- (公社)不動産保証協会
- 公正取引協議会
- 東北地区不動産公正取引協議会
※連合隊は物件情報の精度向上に努めています:「物件情報に誤りがある」「成約済みである」などお気付きの点がございましたらこちらよりご連絡ください。
写真枚数:10枚
新築イメージ参照
新築イメージ参照
新築イメージ参照
新築イメージ参照
杜の都信用金庫七郷支店
ヤマザワ荒井店
セブンイレブン仙台荒井4丁目店
宮城県仙台市内と近郊圏を中心に、 事務所の建て貸し・貸事務所・建築・不動産を行っています。
貸事務所・貸店舗 専門。 得意なのは郊外型の駐車場付物件です。 イージーオーダー方式の企画物件のご提案もできますので、 ぜひお気軽にご相談ください!