泉ヶ丘2丁目貸事務所102号
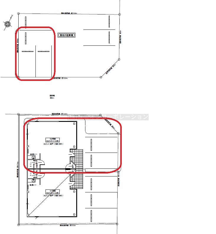
ここに注目!宮城交通バス「泉ヶ丘南入口」停より徒歩2分に位置する「泉ヶ丘2丁目貸事務所」のご紹介です。 延床面積56.67㎡で開放感あふれる前面ガラス張り。自然光が差し込む明るい空間は、オフィスはもちろん、多様なビジネスにご活用いただけます。給排水設備も完備しており、事業の幅が広がります。 お客様や従業員様の駐車場も安心の、無料駐車場5台分(敷地内2台、敷地外3台)を確保。2023年には屋根・外壁塗装が実施され、清潔感も保たれています。 2026年8月以降の引き渡し予定です。新たなビジネスの可能性を広げるこの機会に、ぜひご検討ください。まずはお気軽にお問い合わせください。
| 賃料・費用 |
15万4,000円
(+管理費等 2,200円)
坪単価:約8,985円/坪
敷84万円礼なし仲15万4,000円
|
|---|---|
| 専有面積 | 56.67m² (17.14坪) |
| 住所 | 宮城県仙台市泉区泉ケ丘2-11-22 |
| 交通 | 宮城交通バス 「泉ヶ丘南入口」停(徒歩2分) |
| 階/階建 | 1階建 |
| 築年月 | 築30年(1995年9月) |
| 駐車場 |
あり 駐車可能台数:5台
計5台無料(敷地内2台、敷地外3台) |
空室確認、見学、詳細を知りたい方はこちら!
お電話の際は「連合隊の物件」とお伝えください。
情報掲載期限:あと27日(更新日 2026/5/18)
- 物件写真・概要
- 周辺地図
-
空室確認、見学、詳細を知りたい方はこちら!
おすすめポイント
- 駐車2台以上可
- エアコン付
交通
- 泉中央駅仙台市営地下鉄南北線バス15分(約4.7km)→ 宮城交通バス 「泉ヶ丘南入口」停徒歩2分(約150m)
物件概要
所在階/建物の階建 地上1階建 主要採光面 構造 鉄骨造 間取り 契約期間 3年間 更新料/更新手数料 なし 権利金 住宅保険 出店推奨業種 出店不可業種 飲食全般、水商売 土地面積 263.37m² (79.66坪)接道状況 一方 用途地域 - 第2種住居地域
引渡し 相談 管理人 取引態様 仲介 物件No 設備・特徴 - 照明器具付
- 給排水設備
- エアコン付
- 前面ガラス張り
備考 賃貸保証システム要加入(初回のみ賃料1カ月分)、 借家人賠償保険要加入(借主様手配にて)、 入居中 主な周辺施設色がついているアイコンをクリックすると、本物件までの道順を見ることができます。
-
ホームページはこちら
宮城県知事(6) 第4875号
(株)ユニオンコーポレーション- 加入団体
- (公社)全日本不動産協会
- 保証協会
- (公社)不動産保証協会
- 公正取引協議会
- 東北地区不動産公正取引協議会
※連合隊は物件情報の精度向上に努めています:「物件情報に誤りがある」「成約済みである」などお気付きの点がございましたらこちらよりご連絡ください。
写真枚数:15枚
宮城県仙台市内と近郊圏を中心に、 事務所の建て貸し・貸事務所・建築・不動産を行っています。
貸事務所・貸店舗 専門。 得意なのは郊外型の駐車場付物件です。 イージーオーダー方式の企画物件のご提案もできますので、 ぜひお気軽にご相談ください!