荒井字初田貸事務所
ここに注目!【地下鉄東西線「荒井」駅から徒歩8分】OAフロア付◆敷地内無料駐車場8台付◆角地配置の駐車場で、視認性と利便性を両立◆ 周辺には郵便局やコンビニ、スーパー「ヤマザワ」が揃い、日々の業務や従業員の方々の利便性も高いのが嬉しいポイントです。 広々とした専有面積115.93m²の軽量鉄骨造の建物は、角地で視認性も良好。無料駐車場が8台も完備されているのは、車での通勤や来客が多い業種には大変魅力的ですね。 OAフロアやエアコン、男女別トイレなど、快適なオフィス環境をサポートする設備も充実。現在ご入居中ですが、2026年7月以降のお引き渡しとなります。ぜひ、この機会に事業の拡大やスタートをご検討ください。
| 賃料・費用 |
33万円
(+管理費等 -円)
坪単価:約9,413円/坪
敷180万円礼なし仲33万円
|
|---|---|
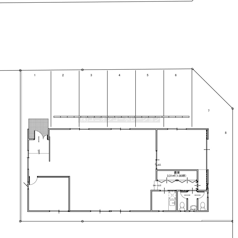
| 専有面積 | 115.93m² (35.06坪) |
| 住所 | 宮城県仙台市若林区荒井7-2-3 |
| 交通 | 荒井駅(徒歩8分)道順を見る |
| 階/階建 | |
| 築年月 | 築19年(2006年8月) |
| 駐車場 |
あり 駐車可能台数:8台
|
空室確認、見学、詳細を知りたい方はこちら!
お電話の際は「連合隊の物件」とお伝えください。
情報掲載期限:あと22日(更新日 2026/3/6)
- 物件写真・概要
- 周辺地図
-
空室確認、見学、詳細を知りたい方はこちら!
おすすめポイント
- 駐車2台以上可
- 男女別トイレ
- エアコン付
- OAフロア
交通色がついているアイコンをクリックすると、本物件までの道順を見ることができます。
物件概要
建物の階建 総戸数 構造 軽量鉄骨造 間取り 契約期間 3年間 更新料/更新手数料 なし 権利金 住宅保険 土地面積 247.55m² (74.88坪)接道状況 角地 用途地域 - 第2種住居地域
引渡し 相談(2026年7月以降) 管理人 取引態様 仲介 物件No 設備・特徴 - 角地
- OAフロア
- ガス設備
- 給排水設備
- エアコン付
- 男女別トイレ
備考 ■入居中■賃貸保証システム要加入(初回のみ賃料1カ月分)■借家人賠償保険要加入(借主様手配にて) 主な周辺施設色がついているアイコンをクリックすると、本物件までの道順を見ることができます。
-
ホームページはこちら
宮城県知事(6) 第4875号
(株)ユニオンコーポレーション- 加入団体
- (公社)全日本不動産協会
- 保証協会
- (公社)不動産保証協会
- 公正取引協議会
- 東北地区不動産公正取引協議会
※連合隊は物件情報の精度向上に努めています:「物件情報に誤りがある」「成約済みである」などお気付きの点がございましたらこちらよりご連絡ください。
写真枚数:14枚
ヤマザワ荒井店
ファミリーマート若林荒井店
宮城県仙台市内と近郊圏を中心に、 事務所の建て貸し・貸事務所・建築・不動産を行っています。
貸事務所・貸店舗 専門。 得意なのは郊外型の駐車場付物件です。 イージーオーダー方式の企画物件のご提案もできますので、 ぜひお気軽にご相談ください!