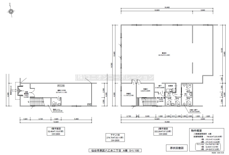
イージーオーダーオフィスin八乙女A棟テナントB
ここに注目!【↓↓賃料改定↓↓】条件見直しのため賃料605,00円に変更しました 仙台市泉区八乙女◆無料駐車場12台付◆1・2階計274.75㎡メゾネットタイプ◆2階に男女別トイレ、1階にもトイレ有◆エアコン付き◆ 仙台市泉区八乙女に位置する「イージーオーダーオフィスin八乙女」A棟テナントBのご紹介です。 広々とした専有面積274.75㎡、1・2階のメゾネットタイプで、多様なビジネスニーズに対応できる空間が魅力です。 仙台市営地下鉄南北線「八乙女」駅までバス5分、バス停からは徒歩4分とアクセスもスムーズ。 周辺にはコンビニ(徒歩3分)、スーパー(徒歩7分)、郵便局(徒歩7分)が揃い、日々の業務をサポートする利便性の高い立地です。 事業に欠かせない無料駐車場が12台分も完備されており、来客や社用車が多い企業様にも大変便利です。
| 賃料・費用 |
60万5,000円
(+管理費等 なし)
坪単価:約7,280円/坪
敷330万円礼なし仲60万5,000円
保証金:なし/敷引・償却金:なし
|
|---|---|
| 専有面積 | 274.75m² (83.11坪) |
| 住所 | 宮城県仙台市泉区八乙女2-11-2 |
| 交通 | 八乙女駅(徒歩12分)|仙台市営バス 「八乙女二丁目」停(徒歩4分)道順を見る |
| 階/階建 | 2階建 |
| 築年月 | 築14年(2012年3月) |
| 駐車場 |
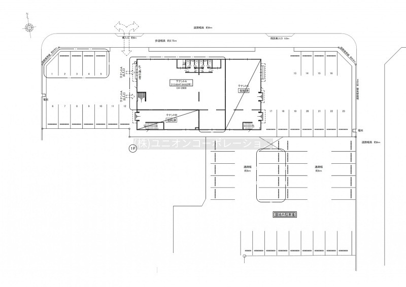
あり 駐車可能台数:12台
敷地内7台、敷地外5台 |
空室確認、見学、詳細を知りたい方はこちら!
お電話の際は「連合隊の物件」とお伝えください。
情報掲載期限:あと25日(更新日 2026/4/21)
- 物件写真・概要
- 周辺地図
-
空室確認、見学、詳細を知りたい方はこちら!
おすすめポイント
- 駐車2台以上可
- 男女別トイレ
- エアコン付
交通色がついているアイコンをクリックすると、本物件までの道順を見ることができます。
- 八乙女駅仙台市営地下鉄南北線徒歩12分(約930m)
- 八乙女駅仙台市営地下鉄南北線バス5分(約850m)→ 仙台市営バス 「八乙女二丁目」停徒歩4分(約300m)
物件概要
所在階/建物の階建 地上2階建 主要採光面 構造 軽量鉄骨造 間取り 契約期間 3年間 更新料/更新手数料 なし 権利金 なし 住宅保険 土地面積 1158.46m² (350.43坪)用途地域 - 第2種中高層住居専用地域
引渡し 相談(2026年6月以降) 管理人 取引態様 仲介 物件No 設備・特徴 - ガス設備
- 給排水設備
- エアコン付
- 男女別トイレ
備考 1・2階のメゾネットタイプ 賃貸保証システム要加入(初回のみ賃料1カ月分) 借家人賠償保険要加入(借主様手配にて) 入居中 主な周辺施設色がついているアイコンをクリックすると、本物件までの道順を見ることができます。
-
ホームページはこちら
宮城県知事(6) 第4875号
(株)ユニオンコーポレーション- 加入団体
- (公社)全日本不動産協会
- 保証協会
- (公社)不動産保証協会
- 公正取引協議会
- 東北地区不動産公正取引協議会
※連合隊は物件情報の精度向上に努めています:「物件情報に誤りがある」「成約済みである」などお気付きの点がございましたらこちらよりご連絡ください。
写真枚数:11枚
セブンイレブン仙台八乙女2丁目店まで徒歩3分
ローソン仙台八乙女一丁目店まで徒歩4分
ヨークベニマル真美沢店まで徒歩7分
宮城県仙台市内と近郊圏を中心に、 事務所の建て貸し・貸事務所・建築・不動産を行っています。
貸事務所・貸店舗 専門。 得意なのは郊外型の駐車場付物件です。 イージーオーダー方式の企画物件のご提案もできますので、 ぜひお気軽にご相談ください!