HANIX.B.L.D
ここに注目!仙台市青葉区本町1丁目に位置する「HANIX.B.L.D」をご紹介します。 仙台駅、県庁・市役所にもアクセスしやすい立地と、建物最上階の広々とした179.61m²のオフィスは様々な事業の事務所として対応可能。前面ガラス張りのデザインと高さのある天井が開放感をもたらし、明るく快適なオフィス環境を演出してくれます。 室内にはビルトインエアコンや照明器具が完備されております。ワンフロア賃貸で室内に専用給湯室あり。24時間セキュリティシステムが導入されているため、安心感を持ってビジネスに集中していただけます。 最寄りの勾当台公園駅まで徒歩7分、コンビニや郵便局、銀行、錦町公園も徒歩圏内にあり、日々の利便性も良い物件です。駐車場もあり社有車の管理にも対応可能です。
この物件の契約期間は 3年間です。
定期借家物件は、賃貸借契約期間満了後、原則として契約の更新ができない物件です。再契約の可否については不動産会社にお問合せください。
| 賃料・費用 |
71万7,156円
(+管理費等 11万9,526円)
坪単価:約1.3万円/坪
敷391万1,760円礼なし仲71万7,156円
保証金:なし/敷引・償却金:なし
|
|---|---|
| 専有面積 | 179.61m² (54.33坪) |
| 住所 | 宮城県仙台市青葉区本町1-11-11 |
| 交通 | 勾当台公園駅(徒歩7分)|広瀬通駅(徒歩9分)|仙台駅(徒歩13分)道順を見る |
| 階/階建 | 6階 / 6階建(地下1階) |
| 築年月 | 築19年(2007年1月) |
| 駐車場 |
あり (4万700円/台) 駐車可能台数:1台
※2台以上は空き要確認 ※駐車場保証金37,000円、事務手数料40,700円 |
空室確認、見学、詳細を知りたい方はこちら!
お電話の際は「連合隊の物件」とお伝えください。
情報掲載期限:あと26日(更新日 2026/3/10)
- 物件写真・概要
- 周辺地図
-
空室確認、見学、詳細を知りたい方はこちら!
おすすめポイント
- 即入居可
- 駐車場あり
- 男女別トイレ
- 24時間セキュリティー
交通色がついているアイコンをクリックすると、本物件までの道順を見ることができます。
- 勾当台公園駅仙台市営地下鉄南北線徒歩7分(約559m)
- 広瀬通駅仙台市営地下鉄南北線徒歩9分(約719m)
- 仙台駅JR仙石線、JR仙山線、JR仙石線、仙台市営地下鉄東西線、仙台市営地下鉄南北線、秋田新幹線、東北新幹線、JR東北本線、JR常磐線徒歩13分(約994m)
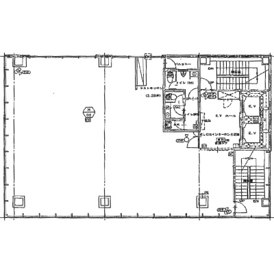
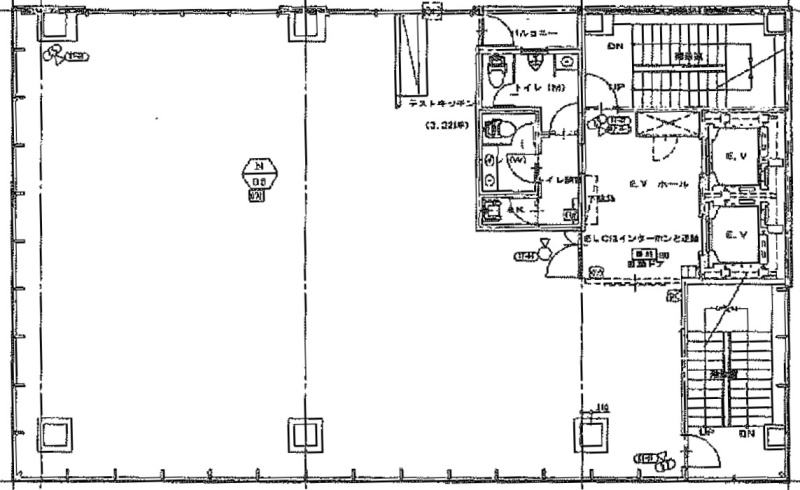
物件概要
所在階/建物の階建 6階(6F) / 地上6階 地下1階建 主要採光面 南 構造 鉄骨鉄筋コンクリート(SRC)造 間取り バルコニー あり契約期間 定期借家(3年間) 更新料/更新手数料 なし 権利金 なし 住宅保険 接道状況 一方 用途地域 - 商業地域(建ぺい率:80% / 容積率:500%)
その他費用 毎月の費用 - 機械警備費:1万6,500円
引渡し 即時 管理人 巡回 取引態様 仲介 物件No 設備・特徴 - 幹線道路沿い
- 照明器具付
- 給排水設備
- ビルトインエアコン
- 24時間セキュリティー
- 前面ガラス張り
- 男女別トイレ
備考 【設備】ビルトインエアコン6台、流し台、ロールカーテン、機械警備、照明器具 【機械警備】入居後に警備会社と借主様間で直接契約いただきセキュリティキーを必要分別途ご負担いただきます。 【契約期間】定期借家3年をベースとして、長期の定期借家契約も可能です。 【フリーレント】事務所の移転、開業までの許認可申請等の際はご相談ください。 主な周辺施設色がついているアイコンをクリックすると、本物件までの道順を見ることができます。
-
ホームページはこちら宮城県知事 (4) 第5514号
(株)メッツプロパティ〒980-0811
宮城県仙台市青葉区一番町2丁目10-17
仙台一番町ビル 8FTEL:022-266-6800
TEL:022-225-4800
FAX:022-265-0556
営業時間:9:00~17:30
定休日:毎週 日曜・祝日
※連合隊は物件情報の精度向上に努めています:「物件情報に誤りがある」「成約済みである」などお気付きの点がございましたらこちらよりご連絡ください。
写真枚数:16枚
男子トイレ
専用給湯室
非常階段
ビルトインエアコン
ロールカーテン
錦町公園
仙台市でアパート・マンションなどをお探しなら常口アトム仙台へ!
仙台市内を中心に不動産管理・仲介をしております。 気になるアパート・マンション・テナントのお問合せは仙台店へ! ※仲介店各社様からのご質問は弊社仙台管理センターへ。