仙台一番町ビル
ここに注目!仙台市青葉区一番町の好立地、「仙台一番町ビル」6階のオフィスをご紹介します。 仙台市営地下鉄東西線「青葉通一番町駅」まで徒歩6分、「大町西公園駅」まで徒歩7分と、主要駅へのアクセスもスムーズです。 広々とした89.88m²の空間は、多様なビジネスニーズに対応可能です。24時間利用可能で、個別空調、照明器具付と快適な執務環境が整っています。24時間セキュリティーと日勤管理で安心のオフィスライフをサポート。共用部には男女別トイレも完備しています。 周辺にはコンビニや銀行、郵便局が徒歩圏内にあり、ビジネスを強力にバックアップする商業地域です。 建物に機械式駐車場もございますので、お車での通勤・社有車のご利用にも便利です。 この機会に、ぜひ一度ご内覧ください。お問い合わせをお待ちしております!
| 賃料・費用 |
29万9,090円
(+管理費等 -円)
坪単価:約1.1万円/坪
敷163万1,400円礼なし仲29万9,090円
保証金:なし/敷引・償却金:なし
|
|---|---|
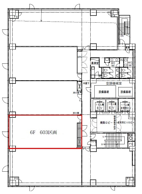
| 専有面積 | 89.88m² (27.18坪) |
| 住所 | 宮城県仙台市青葉区一番町2丁目10番17号 |
| 交通 | 仙台駅(徒歩16分)|大町西公園駅(徒歩7分)|青葉通一番町駅(徒歩6分)道順を見る |
| 階/階建 | 6階 / 11階建 |
| 築年月 | 築32年(1993年4月) |
| 駐車場 |
あり (3万8,500円/台)
※駐車場敷金1ヶ月 |
空室確認、見学、詳細を知りたい方はこちら!
お電話の際は「連合隊の物件」とお伝えください。
情報掲載期限:あと29日(更新日 2026/3/23)
- 物件写真・概要
- 周辺地図
-
空室確認、見学、詳細を知りたい方はこちら!
おすすめポイント
- 駐車場あり
- 24時間セキュリティー
交通色がついているアイコンをクリックすると、本物件までの道順を見ることができます。
- 仙台駅JR仙石線、JR仙山線、JR仙石線、仙台市営地下鉄東西線、仙台市営地下鉄南北線、秋田新幹線、東北新幹線、JR東北本線、JR常磐線徒歩16分(約1.3km)
- 大町西公園駅仙台市営地下鉄東西線徒歩7分(約505m)
- 青葉通一番町駅仙台市営地下鉄東西線徒歩6分(約443m)
物件概要
所在階/建物の階建 6階(603) / 地上11階建 主要採光面 西 構造 鉄骨鉄筋コンクリート(SRC)造 間取り 契約期間 3年間 更新料/更新手数料 なし 権利金 なし 住宅保険 接道状況 角地 用途地域 - 商業地域(建ぺい率:80% / 容積率:500%)
その他費用 毎月の費用 - 看板使用料:3,300円
引渡し 相談 管理人 日勤 取引態様 仲介 物件No 設備・特徴 - エレベーター
- 照明器具付
- 個別空調
- 24時間セキュリティー
- 24時間利用可
- 男女別トイレ(共用部)
備考 主な周辺施設色がついているアイコンをクリックすると、本物件までの道順を見ることができます。
-
ホームページはこちら宮城県知事 (4) 第5514号
(株)メッツプロパティ〒980-0811
宮城県仙台市青葉区一番町2丁目10-17
仙台一番町ビル 8FTEL:022-266-6800
TEL:022-225-4800
FAX:022-265-0556
営業時間:9:00~17:30
定休日:毎週 日曜・祝日
※連合隊は物件情報の精度向上に努めています:「物件情報に誤りがある」「成約済みである」などお気付きの点がございましたらこちらよりご連絡ください。
写真枚数:6枚
機械式駐車場
エントランス
エレベーターホール
エントランス
仙台市でアパート・マンションなどをお探しなら常口アトム仙台へ!
仙台市内を中心に不動産管理・仲介をしております。 気になるアパート・マンション・テナントのお問合せは仙台店へ! ※仲介店各社様からのご質問は弊社仙台管理センターへ。