仙台一番町ビル
ここに注目!地下鉄東西線一番町駅徒歩6分!裁判所向えでランドマーク有り☆セキュリティーALSOK有り! 裁判所向かいの立地!
| 賃料・費用 |
23万7,930円
(+管理費等 -円)
坪単価:約1.1万円/坪
敷129万7,800円仲23万7,930円
|
|---|---|
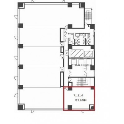
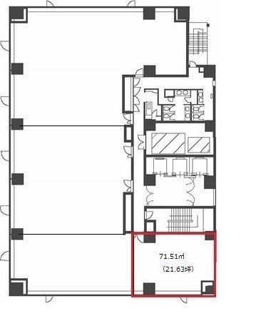
| 専有面積 | 71.51m² (21.63坪) |
| 住所 | 宮城県仙台市青葉区一番町2丁目10番17号 |
| 交通 | あおば通駅(徒歩14分)|仙台駅(徒歩13分)|広瀬通駅(徒歩15分)|青葉通一番町駅(徒歩6分)|大町西公園駅(徒歩8分)道順を見る |
| 階/階建 | 11階 / 11階建 |
| 築年月 | 築32年(1993年4月) |
| 駐車場 |
あり (3万8,500円/台)
|
空室確認、見学、詳細を知りたい方はこちら!
お電話の際は「連合隊の物件」とお伝えください。
情報掲載期限:あと12日(更新日 2025/12/1)
- 物件写真・概要
- 周辺地図
-
空室確認、見学、詳細を知りたい方はこちら!
おすすめポイント
- 複数路線利用可
- 駐車場あり
- 男女別トイレ
- 光ファイバー
- 24時間セキュリティー
交通色がついているアイコンをクリックすると、本物件までの道順を見ることができます。
- あおば通駅JR仙石線、JR仙山線、JR仙石線、仙台市営地下鉄東西線、仙台市営地下鉄南北線、秋田新幹線、東北新幹線、JR東北本線、JR常磐線徒歩14分
- 仙台駅JR仙石線、JR仙山線、JR仙石線、仙台市営地下鉄東西線、仙台市営地下鉄南北線、秋田新幹線、東北新幹線、JR東北本線、JR常磐線徒歩13分
- 広瀬通駅仙台市営地下鉄南北線徒歩15分
- 青葉通一番町駅仙台市営地下鉄東西線徒歩6分(約462m)
- 大町西公園駅仙台市営地下鉄東西線徒歩8分(約571m)
物件概要
所在階/建物の階建 11階 / 地上11階建 主要採光面 南 構造 鉄骨鉄筋コンクリート(SRC)造 間取り 契約期間 3年間 権利金 住宅保険 その他費用 その他 - 看板使用料:3,300円
引渡し 2025年8月初旬 管理人 日勤 取引態様 仲介 物件No 設備・特徴 - 複数路線利用可
- エレベーター
- 照明器具付
- セントラル空調
- 24時間セキュリティー
- ブロードバンド回線(光ファイバー等の高速インターネット)
- 24時間利用可
- 男女別トイレ(共用部)
- 男女別トイレ
備考 保証会社加入 事務所向き その他の設備:防犯カメラ・光回線・照明・駐輪場・エレベーター3基・トイレ各階男女・管理人日勤・24時時間入退室可能・AED設置済み・ ※交差点側立看板利用時、別途追加契約必要。 主な周辺施設色がついているアイコンをクリックすると、本物件までの道順を見ることができます。
-
ホームページはこちら宮城県知事 (4) 第5514号
(株)メッツプロパティ〒980-0811
宮城県仙台市青葉区一番町2丁目10-17
仙台一番町ビル 8FTEL:022-266-6800
TEL:022-225-4800
FAX:022-265-0556
営業時間:9:00~17:30
定休日:毎週 日曜・祝日
※連合隊は物件情報の精度向上に努めています:「物件情報に誤りがある」「成約済みである」などお気付きの点がございましたらこちらよりご連絡ください。
写真枚数:14枚
機械式駐車場
エントランス
エレベーターホール
エントランス
仙台市でアパート・マンションなどをお探しなら常口アトム仙台へ!
仙台市内を中心に不動産管理・仲介をしております。 気になるアパート・マンション・テナントのお問合せは仙台店へ! ※仲介店各社様からのご質問は弊社仙台管理センターへ。