TOBE1東照の丘
ここに注目!設備充実のオール電化分譲マンション! 7坪のガーデン付♪
この物件の契約期間は 5年間です。
定期借家物件は、賃貸借契約期間満了後、原則として契約の更新ができない物件です。再契約の可否については不動産会社にお問合せください。
| 賃料・費用 |
16万円(+管理費等 6,000円)
敷32万円(2ヶ月)礼16万円(1ヶ月)仲17万6,000円
|
|---|---|
| 間取・専有 |
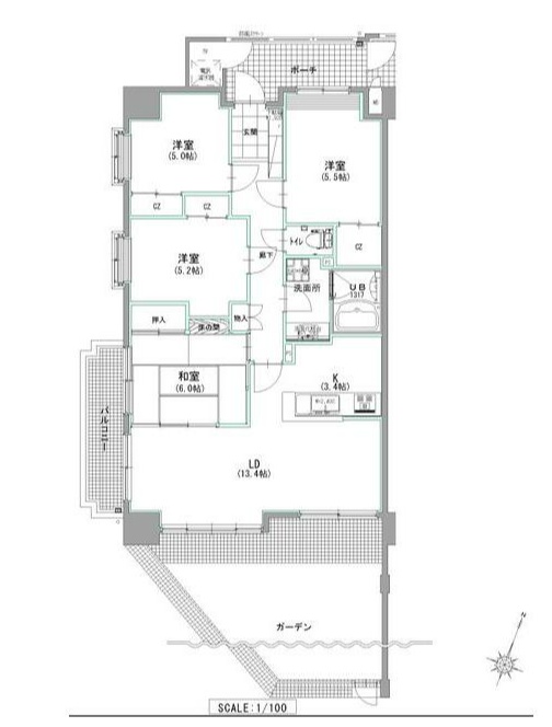
4LDK(86.31m²)└ LDK16.8帖 和室6帖 洋室5.2帖 洋室5帖 洋室5.5帖
|
| 住所 | 宮城県仙台市青葉区東照宮1-8-1 |
| 交通 | 「東照宮1丁目」停 (徒歩4分)|東照宮駅(徒歩6分)|北仙台駅(徒歩28分)道順を見る |
| 築年月 | 築20年(2005年12月) |
| 駐車場 |
あり (4,400円/台)
|
空室確認、見学、詳細を知りたい方はこちら!
お電話の際は「連合隊の物件」とお伝えください。
情報掲載期限:あと25日(更新日 2025/12/15)
- 物件写真・概要
- 周辺地図
-
空室確認、見学、詳細を知りたい方はこちら!
おすすめポイント
- バス/トイレ別
- オートロック
- 2階以上
- 都市ガス
- 室内洗濯機置場
- 駐車場あり
- エアコン付
- 独立洗面台
- 追い焚き風呂
- ペット相談可
- デザイナーズ
- 敷金・礼金0円
- 近くて便利!徒歩5分以内にある施設
- 5分
5分- 5分
5分- 周辺施設を地図で確認
交通色がついているアイコンをクリックすると、本物件までの道順を見ることができます。
- 東照宮駅JR仙山線徒歩6分(約452m)
- 北仙台駅JR仙山線、仙台市営地下鉄南北線徒歩28分(約2.3km)
- 「東照宮1丁目」停 徒歩4分
物件概要
所在階/建物の階建 1階 / 地上10階建 総戸数 主要採光面 南 構造 鉄骨鉄筋コンクリート(SRC)造 バルコニー あり契約期間 定期借家(5年間) 住宅保険 1万5,000円(2年間) その他費用 一時金 - 鍵交換料:3万3,000円
入居可能時期 相談 管理人 取引態様 仲介 物件No 設備・特徴 - 分譲タイプ
- エレベーター
- 駐輪場
- 日当り良好
- 照明器具付
- オール電化
- 室内洗濯機置場
- フローリング
- シューズボックス
- バス/トイレ別
- 温水洗浄トイレ
- 独立洗面台
- シャワー付洗面化粧台
- 浴室乾燥機
- IHクッキングヒーター
- コンロ3口以上
- システムキッチン
- カウンターキッチン
- エアコン付
- オートロック
- モニタ付インターホン
- 防犯カメラ
- BSアンテナ
- ブロードバンド回線(光ファイバー等の高速インターネット)
- 専用庭
- 電気温水器
備考 ペアガラス・タイヤ置き場 学区色がついているアイコンをクリックすると、本物件までの道順を見ることができます。
主な周辺施設色がついているアイコンをクリックすると、本物件までの道順を見ることができます。
-
※連合隊は物件情報の精度向上に努めています:「物件情報に誤りがある」「成約済みである」などお気付きの点がございましたらこちらよりご連絡ください。
写真枚数:18枚
賃貸・売買の様々な悩みや不安を解消できるよう全力で対応致します。 お客様に満足と信頼を頂けるよう、お手伝いさせて頂きます。 営業時間 10:00~19:00