広瀬通SEビル
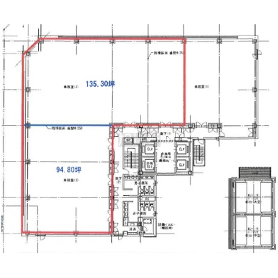
ここに注目!仙台駅東口エリアに、ビジネスの拠点として魅力的な貸事務所が登場しました! JR各線「仙台」駅まで徒歩7分、仙台市営地下鉄東西線「宮城野通」駅も徒歩9分と、複数路線が利用できるアクセス良好な立地です。 広々とした専有面積760.67m²を135.3坪、94.8坪に分割したお部屋になります。OAフロアや個別空調、照明器具完備で快適なオフィス環境を実現。エレベーターや共用部の男女別トイレも整っています。 開閉時間平日(土曜日含) 7:00~20:00 天井高2800mm 駐車場空1台(機械式ハイルーフ対応) 周辺にはコンビニ、スーパー、銀行、郵便局、ショッピングセンターなどが揃い、日々の業務や生活にも大変便利です。 この機会に、貴社のビジネスを加速させる拠点として、ぜひご検討ください。お問い合わせをお待ちしております。
| 賃料・費用 |
166万8,480円
(+管理費等 -円)
坪単価:約1.8万円/坪
敷1,820万1,600円礼なし仲166万8,480円
|
|---|---|
| 専有面積 | 313.38m² (94.79坪) |
| 住所 | 宮城県仙台市宮城野区名掛丁128 |
| 交通 | 仙台駅(徒歩7分)道順を見る |
| 階/階建 | 2階 / 9階建 |
| 築年月 | 築18年(2007年12月) |
| 駐車場 |
あり (3万3,000円/台)
機械式ハイルーフ対応 |
【WEB面談可】
空室確認、見学、詳細を知りたい方はこちら!
お電話の際は「連合隊の物件」とお伝えください。
情報掲載期限:あと19日(更新日 2026/4/15)
- 物件写真・概要
- 周辺地図
-
【WEB面談可】
空室確認、見学、詳細を知りたい方はこちら!おすすめポイント
- 駅前立地
- 駐車場あり
- OAフロア
- 24時間セキュリティー
交通色がついているアイコンをクリックすると、本物件までの道順を見ることができます。
物件概要
所在階/建物の階建 2階(2階分割) / 地上9階建 主要採光面 構造 鉄骨造 間取り 契約期間 2年間 権利金 住宅保険 お問合せください 引渡し 相談 管理人 常駐 取引態様 仲介 物件No J163 設備・特徴 - 個別空調
- OAフロア
- エレベーター
- 駅前立地
- 24時間セキュリティー
- 男女別トイレ(共用部)
- その他宮城野区
- 仙台駅東口エリア
備考 賃貸保証契約加入必須 事務所向き その他宮城野区 仙台駅東口エリア 主な周辺施設色がついているアイコンをクリックすると、本物件までの道順を見ることができます。
-
※連合隊は物件情報の精度向上に努めています:「物件情報に誤りがある」「成約済みである」などお気付きの点がございましたら こちら よりご連絡ください。
写真枚数:8枚
仙台市内でオフィス・店舗等の事業用賃貸物件の仲介を行っている創業30年の会社です!
貸事務所・店舗をお探しの方、またはビルオーナー様、店舗を譲りたい方、閉店したい方、不動産の事を相談したい方ぜひご連絡下さい!創業30年の経験から得た物件知識でお客様のご希望の物件を最短でお探し致します。