(仮)長命ヶ丘2丁目店舗
ここに注目!長命ヶ丘ブランチ近くにある店舗になります。駐車場6台可(1台4,000円)以前はパン屋さんが営業されていました♪ 業種などぜひご相談下さい!
| 賃料・費用 |
14万円
(+管理費等 -円)
坪単価:約4,669円/坪
敷42万円(3ヶ月)礼14万円(1ヶ月)仲14万円
|
|---|---|
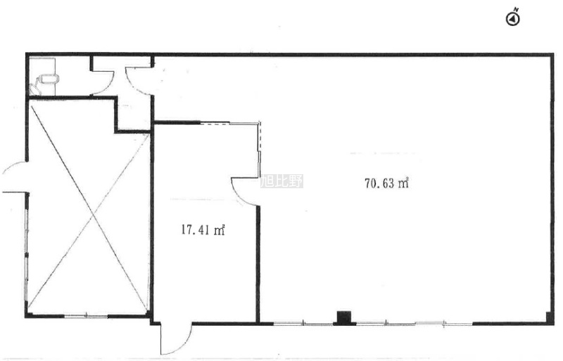
| 専有面積 | 99.15m² (29.99坪) |
| 住所 | 宮城県仙台市泉区長命ヶ丘2-18-8 |
| 交通 | |
| 階/階建 | 1階 / 2階建 |
| 築年月 | 築46年(1979年10月) |
| 駐車場 |
あり (4,000円/台)
6台可 1台4000円 |
【WEB面談可】
空室確認、見学、詳細を知りたい方はこちら!
お電話の際は「連合隊の物件」とお伝えください。
情報掲載期限:あと22日(更新日 2026/3/17)
- 物件写真・概要
- 周辺地図
-
【WEB面談可】
空室確認、見学、詳細を知りたい方はこちら!おすすめポイント
- 即入居可
- 駐車場あり
- 出店するなら…この業種がおすすめ!
- 飲食全般(重飲食含む)

- 喫茶・カフェ(軽飲食)

- バー・クラブ・スナック

- 小売・物販

- 美容・健康・介護

- 医療

- 教育・スクール

- 事務所

- アミューズメント

物件概要
所在階/建物の階建 1階(1階) / 地上2階建 主要採光面 南 構造 間取り 契約期間 2年間 権利金 住宅保険 お問合せください 出店推奨業種 喫茶・カフェ(軽飲食)、小売・物販、美容・健康・介護 出店不可業種 引渡し 即時 管理人 取引態様 仲介 物件No H141 設備・特徴 - 1階路面店舗
- テナント
- 泉区エリア
備考 物販店舗向き 賃貸保証契約加入必須 泉区エリア テナント向き 南向き 飲食店向き 主な周辺施設色がついているアイコンをクリックすると、本物件までの道順を見ることができます。
-
※連合隊は物件情報の精度向上に努めています:「物件情報に誤りがある」「成約済みである」などお気付きの点がございましたらこちらよりご連絡ください。
写真枚数:2枚












仙台市内でオフィス・店舗等の事業用賃貸物件の仲介を行っている創業30年の会社です!
貸事務所・店舗をお探しの方、またはビルオーナー様、店舗を譲りたい方、閉店したい方、不動産の事を相談したい方ぜひご連絡下さい!創業30年の経験から得た物件知識でお客様のご希望の物件を最短でお探し致します。