壱番館ビル
ここに注目!図面は現況優先となります。リフォーム済。内ドア、二重窓。現在美容サロンが入居しております。
| 賃料・費用 |
8万8,000円
(+管理費等 -円)
坪単価:約1.1万円/坪
敷16万円礼8万8,000円(1ヶ月)仲8万8,000円
|
|---|---|
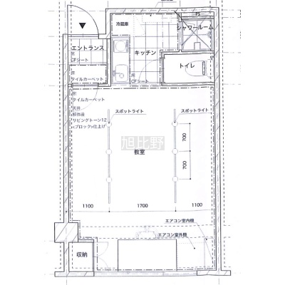
| 専有面積 | 26.42m² (7.99坪) |
| 住所 | 宮城県仙台市青葉区一番町1-6-22 |
| 交通 | 青葉通一番町駅(徒歩4分)|仙台駅(徒歩12分)|広瀬通駅(徒歩13分)道順を見る |
| 階/階建 | 6階 / 8階建(地下1階) |
| 築年月 | 築51年(1974年11月) |
| 駐車場 |
なし
|
【WEB面談可】
空室確認、見学、詳細を知りたい方はこちら!
お電話の際は「連合隊の物件」とお伝えください。
情報掲載期限:あと24日(更新日 2026/1/29)
- 物件写真・概要
- 周辺地図
-
【WEB面談可】
空室確認、見学、詳細を知りたい方はこちら!おすすめポイント
- 駅徒歩5分以内
- デザイナーズ
- エアコン付
- 出店するなら…この業種がおすすめ!
- 飲食全般(重飲食含む)

- 喫茶・カフェ(軽飲食)

- バー・クラブ・スナック

- 小売・物販

- 美容・健康・介護

- 医療

- 教育・スクール

- 事務所

- アミューズメント

※出店不可の業種:飲食全般
交通色がついているアイコンをクリックすると、本物件までの道順を見ることができます。
- 青葉通一番町駅仙台市営地下鉄東西線徒歩4分(約315m)
- 仙台駅JR仙石線、JR仙山線、JR仙石線、仙台市営地下鉄東西線、仙台市営地下鉄南北線、秋田新幹線、東北新幹線、JR東北本線、JR常磐線徒歩12分(約924m)
- 広瀬通駅仙台市営地下鉄南北線徒歩13分(約976m)
物件概要
所在階/建物の階建 6階(604) / 地上8階 地下1階建 主要採光面 構造 鉄骨鉄筋コンクリート(SRC)造 間取り 契約期間 更新料/更新手数料 2万5,000円 権利金 住宅保険 出店推奨業種 美容・健康・介護、教育・スクール、事務所 出店不可業種 飲食全般 用途地域 - 商業地域
その他費用 一時金 - 家賃保証会社:8万8,000円
引渡し 管理人 取引態様 仲介 物件No E008 設備・特徴 - エレベーター
- エアコン付
- 給排水設備
- デザイナーズ
- テナント
- 仙台駅北部エリア
- 仙台駅南部エリア
- 中心部エリア
備考 図面は現況優先となります。リフォーム済。内ドア、二重窓。現在美容サロンが入居しております。 主な周辺施設色がついているアイコンをクリックすると、本物件までの道順を見ることができます。
-
※連合隊は物件情報の精度向上に努めています:「物件情報に誤りがある」「成約済みである」などお気付きの点がございましたらこちらよりご連絡ください。
写真枚数:10枚












仙台市内でオフィス・店舗等の事業用賃貸物件の仲介を行っている創業30年の会社です!
貸事務所・店舗をお探しの方、またはビルオーナー様、店舗を譲りたい方、閉店したい方、不動産の事を相談したい方ぜひご連絡下さい!創業30年の経験から得た物件知識でお客様のご希望の物件を最短でお探し致します。