渡幸ベルメゾン五橋
ここに注目!「渡幸ベルメゾン五橋」2階、新築未入居の貸事務所のご紹介です。 仙台市営地下鉄南北線「五橋」駅まで徒歩3分!主要駅「仙台」駅も徒歩圏内で、ビジネスの拠点として利便性の高いアクセスを誇ります。 周辺にはコンビニ、ドラッグストア、銀行、郵便局などが揃い、日々の業務をサポートする環境が充実しています。 広々とした専有面積90.69㎡。OAフロア完備で快適なオフィス空間を実現できます。共用部に男女別トイレあり。 2026年2月末日引き渡し予定。新しいオフィスでビジネスをスタートしませんか?ぜひ一度ご内覧ください。
| 賃料・費用 |
36万2,076円
(+管理費等 2万2,000円)
坪単価:約1.3万円/坪
敷98万7,480円仲36万2,076円
|
|---|---|
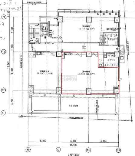
| 専有面積 | 90.69m² (27.43坪) |
| 住所 | 宮城県仙台市若林区東七番丁22-7 |
| 交通 | 五橋駅(徒歩3分)|仙台駅(徒歩13分)道順を見る |
| 階/階建 | 2階 / 13階建 |
| 築年月 | 建築中(2026年2月完成予定) |
| 駐車場 |
あり (1万8,700円/台)
契約台数相談 |
【WEB面談可】
空室確認、見学、詳細を知りたい方はこちら!
お電話の際は「連合隊の物件」とお伝えください。
情報掲載期限:あと18日(更新日 2025/12/22)
- 物件写真・概要
- 周辺地図
-
【WEB面談可】
空室確認、見学、詳細を知りたい方はこちら!おすすめポイント
- 駅徒歩3分以内
- 駅前立地
- 駐車場あり
- OAフロア
交通色がついているアイコンをクリックすると、本物件までの道順を見ることができます。
- 五橋駅仙台市営地下鉄南北線駅近!徒歩3分(約230m)
- 仙台駅JR仙石線、JR仙山線、JR仙石線、仙台市営地下鉄東西線、仙台市営地下鉄南北線、秋田新幹線、東北新幹線、JR東北本線、JR常磐線徒歩13分(約1.1km)
物件概要
所在階/建物の階建 2階(2階) / 地上13階建 主要採光面 構造 鉄筋コンクリート(RC)造 間取り 契約期間 2年間 権利金 住宅保険 お問合せください 引渡し 相談(2026年2月末日) 管理人 取引態様 仲介 物件No K258 設備・特徴 - 駅前立地
- エレベーター
- OAフロア
- 男女別トイレ(共用部)
- その他若林区
備考 事務所向き その他若林区 賃貸保証契約加入必須 主な周辺施設色がついているアイコンをクリックすると、本物件までの道順を見ることができます。
-
※連合隊は物件情報の精度向上に努めています:「物件情報に誤りがある」「成約済みである」などお気付きの点がございましたらこちらよりご連絡ください。
写真枚数:3枚












仙台市内でオフィス・店舗等の事業用賃貸物件の仲介を行っている創業30年の会社です!
貸事務所・店舗をお探しの方、またはビルオーナー様、店舗を譲りたい方、閉店したい方、不動産の事を相談したい方ぜひご連絡下さい!創業30年の経験から得た物件知識でお客様のご希望の物件を最短でお探し致します。