大野第二ビル
ここに注目!仙台駅へ徒歩5分県内。宮城野通駅徒歩1分東口好立地物件です。1フロア1テナント。ミニキッチン、電気温水器設備完備。男女別トイレ。(ウォッシュレットあり) 窓広告不可。ガス、駐輪場無。
| 賃料・費用 |
40万6,520円
(+管理費等 -円)
坪単価:約8,580円/坪
敷250万円仲40万6,520円
|
|---|---|
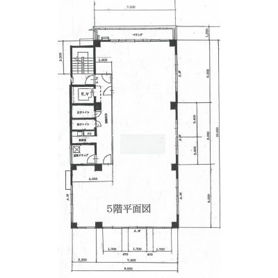
| 専有面積 | 156.63m² (47.38坪) |
| 住所 | 宮城県仙台市宮城野区榴岡4-5-2 |
| 交通 | 宮城野通駅(徒歩3分)|仙台駅(徒歩8分) |
| 階/階建 | 5階 / 7階建(地下1階) |
| 築年月 | 築41年(1984年4月) |
| 駐車場 |
なし
|
【WEB面談可】
空室確認、見学、詳細を知りたい方はこちら!
お電話の際は「連合隊の物件」とお伝えください。
情報掲載期限:あと27日(更新日 2025/12/22)
- 物件写真・概要
- 周辺地図
-
【WEB面談可】
空室確認、見学、詳細を知りたい方はこちら!おすすめポイント
- 駅徒歩3分以内
- 駅前立地
- エアコン付
- 出店するなら…この業種がおすすめ!
- 飲食全般(重飲食含む)

- 喫茶・カフェ(軽飲食)

- バー・クラブ・スナック

- 小売・物販

- 美容・健康・介護

- 医療

- 教育・スクール

- 事務所

- アミューズメント

交通色がついているアイコンをクリックすると、本物件までの道順を見ることができます。
- 宮城野通駅仙台市営地下鉄東西線駅近!徒歩3分(約177m)
- 仙台駅JR仙石線、JR仙山線、JR仙石線、仙台市営地下鉄東西線、仙台市営地下鉄南北線、秋田新幹線、東北新幹線、JR東北本線、JR常磐線徒歩8分(約596m)
物件概要
所在階/建物の階建 5階(5階) / 地上7階 地下1階建 主要採光面 構造 鉄骨鉄筋コンクリート(SRC)造 間取り 契約期間 2年間 権利金 住宅保険 お問合せください 出店推奨業種 美容・健康・介護、教育・スクール、事務所 出店不可業種 その他費用 毎月の費用 - 看板使用料:1万1,000円
引渡し 相談 管理人 取引態様 仲介 物件No J084 設備・特徴 - 駅前立地
- エレベーター
- エアコン付
- 男女別トイレ(共用部)
- テナント
- 仙台駅東口エリア
備考 事務所向き テナント向き 仙台駅東口エリア 賃貸保証契約加入必須 主な周辺施設色がついているアイコンをクリックすると、本物件までの道順を見ることができます。
-
※連合隊は物件情報の精度向上に努めています:「物件情報に誤りがある」「成約済みである」などお気付きの点がございましたらこちらよりご連絡ください。
写真枚数:10枚












仙台市内でオフィス・店舗等の事業用賃貸物件の仲介を行っている創業30年の会社です!
貸事務所・店舗をお探しの方、またはビルオーナー様、店舗を譲りたい方、閉店したい方、不動産の事を相談したい方ぜひご連絡下さい!創業30年の経験から得た物件知識でお客様のご希望の物件を最短でお探し致します。