(仮)八幡1棟テナント(住居可)
ここに注目!仙台市青葉区八幡に、2019年築の一棟テナント物件が登場しました。 1階と2階合わせて116.73㎡(1階 55.88㎡ 2階 60.86㎡ 合計116、74㎡) のゆとりある空間は、事務所利用はもちろん、美容・健康・介護、教育・スクールなど幅広い事業展開にご活用いただけます。軽飲食のご相談も可能です。 こちらの物件は住居としても利用可能で、浴室も完備。ビジネスとプライベートを両立させる職住一体のスタイルも叶います。 縦列で約3台分の駐車場があり、お車での来店や通勤にも便利です。 徒歩2分のコンビニをはじめ、スーパーやドラッグストア、郵便局なども近く、日々の生活にも困りません。 新しいビジネスの拠点として、または住まいを兼ねた店舗・事務所をお探しの方におすすめです。 この機会にぜひご検討ください。詳細はお気軽にお問い合わせください。
| 賃料・費用 |
29万7,000円
(+管理費等 -円)
坪単価:約8,412円/坪
敷81万円礼27万円仲29万7,000円
|
|---|---|
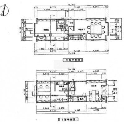
| 専有面積 | 116.73m² (35.31坪) |
| 住所 | 宮城県仙台市青葉区八幡2-15-12 |
| 交通 | 北仙台駅(徒歩29分)|北四番丁駅(徒歩22分)|東北福祉大前駅(徒歩15分)道順を見る |
| 階/階建 | 2階建 |
| 築年月 | 築6年(2020年1月) |
| 駐車場 |
あり 駐車可能台数:3台
縦列で車種にもよります |
【WEB面談可】
空室確認、見学、詳細を知りたい方はこちら!
お電話の際は「連合隊の物件」とお伝えください。
情報掲載期限:あと21日(更新日 2025/12/24)
- 物件写真・概要
- 周辺地図
-
【WEB面談可】
空室確認、見学、詳細を知りたい方はこちら!おすすめポイント
- 即入居可
- 駐車2台以上可
- 出店するなら…この業種がおすすめ!
- 飲食全般(重飲食含む)

- 喫茶・カフェ(軽飲食)

- バー・クラブ・スナック

- 小売・物販

- 美容・健康・介護

- 医療

- 教育・スクール

- 事務所

- アミューズメント

交通色がついているアイコンをクリックすると、本物件までの道順を見ることができます。
物件概要
建物の階建 地上2階建 総戸数 構造 木造 間取り 契約期間 2年間 権利金 住宅保険 お問合せください 出店推奨業種 美容・健康・介護、教育・スクール、事務所 出店不可業種 引渡し 即時 管理人 取引態様 仲介 物件No F177 設備・特徴 - テナント
- 仙台駅北部エリア
- 青葉区西部エリア
- 青葉区その他エリア
備考 青葉区西部エリア 仙台駅北部エリア 賃貸保証契約加入必須 事務所向き テナント向き 店舗付住宅 主な周辺施設色がついているアイコンをクリックすると、本物件までの道順を見ることができます。
-
※連合隊は物件情報の精度向上に努めています:「物件情報に誤りがある」「成約済みである」などお気付きの点がございましたらこちらよりご連絡ください。
写真枚数:16枚












仙台市内でオフィス・店舗等の事業用賃貸物件の仲介を行っている創業30年の会社です!
貸事務所・店舗をお探しの方、またはビルオーナー様、店舗を譲りたい方、閉店したい方、不動産の事を相談したい方ぜひご連絡下さい!創業30年の経験から得た物件知識でお客様のご希望の物件を最短でお探し致します。