プラーナ泉中央
ここに注目!泉ヶ岳通り面す1階路面店舗・事務所物件です。駐車場2台空き有。(別途来客向け駐車場2台有)事務所仕上げでの引渡し予定です。業種は要相談となります。賃貸保証会社・火災保険加入必須 飲食店、美容室不可。鍵交換代 14,300円有 ※写真は別の部屋のものとなります。
| 賃料・費用 |
17万4,515円
(+管理費等 2万7,555円)
坪単価:約1.0万円/坪
敷95万1,900円礼なし仲17万4,515円
|
|---|---|
| 専有面積 | 55.21m² (16.7坪) |
| 住所 | 宮城県仙台市泉区泉中央4-19-1 |
| 交通 | 泉中央駅(徒歩5分) |
| 階/階建 | 路面 / 10階建 |
| 築年月 | 築25年(2000年3月) |
| 駐車場 |
あり (1万4,300円/台) 駐車可能台数:2台
別途来客向け駐車場2台有 |
【WEB面談可】
空室確認、見学、詳細を知りたい方はこちら!
お電話の際は「連合隊の物件」とお伝えください。
情報掲載期限:あと26日(更新日 2025/12/16)
- 物件写真・概要
- 周辺地図
-
【WEB面談可】
空室確認、見学、詳細を知りたい方はこちら!おすすめポイント
- 路面店
- 駅徒歩5分以内
- 幹線道路沿い
- 駐車2台以上可
- 24時間セキュリティー
- 出店するなら…この業種がおすすめ!
- 飲食全般(重飲食含む)

- 喫茶・カフェ(軽飲食)

- バー・クラブ・スナック

- 小売・物販

- 美容・健康・介護

- 医療

- 教育・スクール

- 事務所

- アミューズメント

※出店不可の業種:飲食全般
交通色がついているアイコンをクリックすると、本物件までの道順を見ることができます。
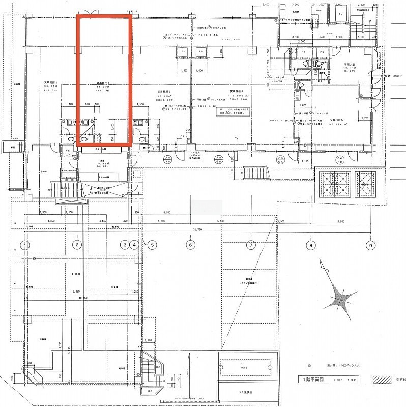
物件概要
所在階/建物の階建 1階(106) / 地上10階建 主要採光面 構造 鉄骨鉄筋コンクリート(SRC)造 間取り 契約期間 2年間 権利金 住宅保険 お問合せください 出店推奨業種 小売・物販、教育・スクール、事務所 出店不可業種 飲食全般 その他費用 毎月の費用 - セキュリティー代月額:7,700円
一時金 - 鍵交換料:1万4,300円
- 駐車場敷金:1万4,300円
引渡し 相談(2025年7月上旬) 管理人 取引態様 仲介 物件No H094 設備・特徴 - 幹線道路沿い
- 個別空調
- 24時間セキュリティー
- テナント
- 泉区エリア
- 路面店
備考 泉区エリア 事務所向き テナント向き 賃貸保証契約加入必須 物販・サービス業向け 主な周辺施設色がついているアイコンをクリックすると、本物件までの道順を見ることができます。
-
※連合隊は物件情報の精度向上に努めています:「物件情報に誤りがある」「成約済みである」などお気付きの点がございましたらこちらよりご連絡ください。
写真枚数:16枚












仙台市内でオフィス・店舗等の事業用賃貸物件の仲介を行っている創業30年の会社です!
貸事務所・店舗をお探しの方、またはビルオーナー様、店舗を譲りたい方、閉店したい方、不動産の事を相談したい方ぜひご連絡下さい!創業30年の経験から得た物件知識でお客様のご希望の物件を最短でお探し致します。