ムサシヤビル
ここに注目!以前は事務所で現状有姿となります。定期借家契約(年数応相談)。飲食可。
この物件の契約期間は 5年間です。
定期借家物件は、賃貸借契約期間満了後、原則として契約の更新ができない物件です。再契約の可否については不動産会社にお問合せください。
| 賃料・費用 |
14万3,000円
(+管理費等 -円)
坪単価:約1.4万円/坪
敷39万円仲14万3,000円
|
|---|---|
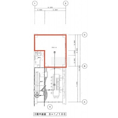
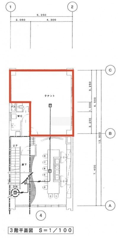
| 専有面積 | 34.62m² (10.47坪) |
| 住所 | 宮城県仙台市青葉区国分町3-1-4 |
| 交通 | 勾当台公園駅(徒歩2分)|仙台駅(徒歩20分) |
| 階/階建 | 3階 |
| 築年月 | 築60年(1965年4月) |
| 駐車場 |
なし
|
【WEB面談可】
空室確認、見学、詳細を知りたい方はこちら!
お電話の際は「連合隊の物件」とお伝えください。
情報掲載期限:あと22日(更新日 2026/2/25)
- 物件写真・概要
- 周辺地図
-
【WEB面談可】
空室確認、見学、詳細を知りたい方はこちら!おすすめポイント
- 即入居可
- 駅徒歩3分以内
- 駅前立地
- 幹線道路沿い
- 出店するなら…この業種がおすすめ!
- 飲食全般(重飲食含む)

- 喫茶・カフェ(軽飲食)

- バー・クラブ・スナック

- 小売・物販

- 美容・健康・介護

- 医療

- 教育・スクール

- 事務所

- アミューズメント

交通色がついているアイコンをクリックすると、本物件までの道順を見ることができます。
- 勾当台公園駅仙台市営地下鉄南北線駅近!徒歩2分(約146m)
- 仙台駅JR仙石線、JR仙山線、JR仙石線、仙台市営地下鉄東西線、仙台市営地下鉄南北線、秋田新幹線、東北新幹線、JR東北本線、JR常磐線徒歩20分(約1.6km)
物件概要
所在階/建物の階建 3階(3階) / 地下6階建 主要採光面 構造 鉄筋コンクリート(RC)造 間取り 契約期間 定期借家(5年間) 権利金 住宅保険 お問合せください 出店推奨業種 喫茶・カフェ(軽飲食)、小売・物販、教育・スクール 出店不可業種 引渡し 即時 管理人 取引態様 仲介 物件No E037 設備・特徴 - 駅前立地
- 幹線道路沿い
- テナント
- 中心部エリア
- 仙台駅北部エリア
備考 テナント向き 賃貸保証契約加入必須 仙台駅北部エリア 事務所向き 飲食店向き 物販向け 主な周辺施設色がついているアイコンをクリックすると、本物件までの道順を見ることができます。
-
※連合隊は物件情報の精度向上に努めています:「物件情報に誤りがある」「成約済みである」などお気付きの点がございましたらこちらよりご連絡ください。
写真枚数:15枚












仙台市内でオフィス・店舗等の事業用賃貸物件の仲介を行っている創業30年の会社です!
貸事務所・店舗をお探しの方、またはビルオーナー様、店舗を譲りたい方、閉店したい方、不動産の事を相談したい方ぜひご連絡下さい!創業30年の経験から得た物件知識でお客様のご希望の物件を最短でお探し致します。