鹿島ビル
ここに注目!仙台市営地下鉄南北線「広瀬通」駅まで徒歩4分、JR「あおば通」駅徒歩6分、JR「仙台」駅徒歩8分と、複数路線が利用できる交通アクセスが魅力。通勤・来客にも大変便利です。 専有面積190.25㎡のゆとりの空間(1フロア)は、医療、教育・スクール、事務所など様々なビジネスに対応可能。広瀬通に面しているため視認性も高く、袖看板や入口上部広告看板の設置も可能(別途費用)。集客力向上にも貢献します。 周辺にはコンビニ、銀行、ドラッグストアなどが揃い、ビジネスをサポートする環境が充実。駐車場もございます(別途費用、敷金あり)。 ※室内の写真は違うお部屋の写真です(イメージとして)
| 賃料・費用 |
63万3,050円
(+管理費等 22万1,567円)
坪単価:約1.1万円/坪
敷402万8,500円仲63万3,050円
|
|---|---|
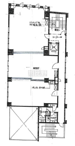
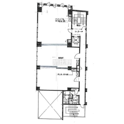
| 専有面積 | 190.25m² (57.55坪) |
| 住所 | 宮城県仙台市青葉区中央1丁目6-23 |
| 交通 | 広瀬通駅(徒歩4分)|あおば通駅(徒歩6分)|仙台駅(徒歩8分)道順を見る |
| 階/階建 | 6階 / 9階建 |
| 築年月 | 築42年(1983年10月) |
| 駐車場 |
あり (3万800円/台)
敷金1ヶ月あり 車両の大きさ確認必要 |
【WEB面談可】
空室確認、見学、詳細を知りたい方はこちら!
お電話の際は「連合隊の物件」とお伝えください。
情報掲載期限:あと26日(更新日 2025/12/18)
- 物件写真・概要
- 周辺地図
-
【WEB面談可】
空室確認、見学、詳細を知りたい方はこちら!おすすめポイント
- 駅徒歩5分以内
- 幹線道路沿い
- 駐車場あり
- エアコン付
- 出店するなら…この業種がおすすめ!
- 飲食全般(重飲食含む)

- 喫茶・カフェ(軽飲食)

- バー・クラブ・スナック

- 小売・物販

- 美容・健康・介護

- 医療

- 教育・スクール

- 事務所

- アミューズメント

※出店不可の業種:飲食全般
交通色がついているアイコンをクリックすると、本物件までの道順を見ることができます。
- 広瀬通駅仙台市営地下鉄南北線徒歩4分(約320m)
- あおば通駅JR仙石線、JR仙山線、JR仙石線、仙台市営地下鉄東西線、仙台市営地下鉄南北線、秋田新幹線、東北新幹線、JR東北本線、JR常磐線徒歩6分(約433m)
- 仙台駅JR仙石線、JR仙山線、JR仙石線、仙台市営地下鉄東西線、仙台市営地下鉄南北線、秋田新幹線、東北新幹線、JR東北本線、JR常磐線徒歩8分(約564m)
物件概要
所在階/建物の階建 6階(6階) / 地上9階建 主要採光面 構造 鉄骨鉄筋コンクリート(SRC)造 間取り 契約期間 2年間 権利金 住宅保険 お問合せください 出店推奨業種 医療、教育・スクール、事務所 出店不可業種 飲食全般 その他費用 毎月の費用 - 袖看板:3,300円
- 入口上部看板:1万1,000円
一時金 - 家賃保証会社:85万4,617円
引渡し 相談(2026年4月末退去) 管理人 取引態様 仲介 物件No A013 設備・特徴 - 幹線道路沿い
- エレベーター
- エアコン付
- テナント
- 中心部エリア
- 仙台駅北部エリア
- 仙台駅南部エリア
- その他:個別空調 , エレベータ有 1機 ,
備考 テナント向き 事務所向き 仙台駅北部エリア 仙台駅南部エリア 賃貸保証契約加入必須 主な周辺施設色がついているアイコンをクリックすると、本物件までの道順を見ることができます。
-
※連合隊は物件情報の精度向上に努めています:「物件情報に誤りがある」「成約済みである」などお気付きの点がございましたらこちらよりご連絡ください。
写真枚数:6枚












仙台市内でオフィス・店舗等の事業用賃貸物件の仲介を行っている創業30年の会社です!
貸事務所・店舗をお探しの方、またはビルオーナー様、店舗を譲りたい方、閉店したい方、不動産の事を相談したい方ぜひご連絡下さい!創業30年の経験から得た物件知識でお客様のご希望の物件を最短でお探し致します。