黄海製本ビル B棟
ここに注目!申込みの内容により保証会社に加入して頂く場合があります。 駐車場約10台程可能!2階60坪ワンフロアとなります。エアコンオーバーホール済。洋式トイレ新品に入替済み。諸条件はご相談となります。 ※現在入居中で2027年11月には空き予定になっております
| 賃料・費用 |
27万5,000円
(+管理費等 6,600円)
坪単価:約4,584円/坪
敷75万円礼27万5,000円(1ヶ月)仲27万5,000円
|
|---|---|
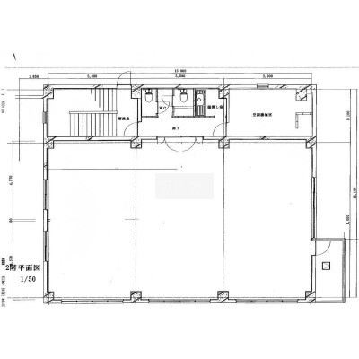
| 専有面積 | 198.35m² (60坪) |
| 住所 | 宮城県仙台市宮城野区扇町1-1-48 |
| 交通 | 小鶴新田駅(徒歩12分)道順を見る |
| 階/階建 | 2階 / 3階建 |
| 築年月 | 築42年(1983年9月) |
| 駐車場 |
あり (5,000円/台)
駐車台数相談 |
【WEB面談可】
空室確認、見学、詳細を知りたい方はこちら!
お電話の際は「連合隊の物件」とお伝えください。
情報掲載期限:あと27日(更新日 2025/12/22)
- 物件写真・概要
- 周辺地図
-
【WEB面談可】
空室確認、見学、詳細を知りたい方はこちら!おすすめポイント
- 駐車場あり
- エアコン付
交通色がついているアイコンをクリックすると、本物件までの道順を見ることができます。
物件概要
所在階/建物の階建 2階(2階) / 地上3階建 主要採光面 構造 鉄筋コンクリート(RC)造 間取り 契約期間 2年間 権利金 住宅保険 お問合せください その他費用 毎月の費用 - 水道料:3,000円
引渡し 2027年11月頃に空き予定です 管理人 取引態様 仲介 物件No J068 設備・特徴 - その他宮城野区
- エアコン付
備考 事務所向き その他宮城野区 賃貸保証契約加入必須 テナント向き 主な周辺施設色がついているアイコンをクリックすると、本物件までの道順を見ることができます。
-
※連合隊は物件情報の精度向上に努めています:「物件情報に誤りがある」「成約済みである」などお気付きの点がございましたらこちらよりご連絡ください。
写真枚数:7枚












仙台市内でオフィス・店舗等の事業用賃貸物件の仲介を行っている創業30年の会社です!
貸事務所・店舗をお探しの方、またはビルオーナー様、店舗を譲りたい方、閉店したい方、不動産の事を相談したい方ぜひご連絡下さい!創業30年の経験から得た物件知識でお客様のご希望の物件を最短でお探し致します。