東武仙台第一ビル
| 賃料・費用 |
52万7,208円
(+管理費等 -円)
坪単価:約1.3万円/坪
敷575万1,360円仲52万7,208円
|
|---|---|
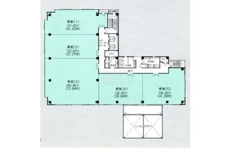
| 専有面積 | 132.04m² (39.94坪) |
| 住所 | 宮城県仙台市宮城野区榴岡4丁目6-1 |
| 交通 | 宮城野通駅(徒歩1分)|仙台駅(徒歩8分)道順を見る |
| 階/階建 | 5階 / 7階建 |
| 築年月 | 築32年(1993年3月) |
| 駐車場 |
あり (3万5,200円/台)
敷金3ヶ月 |
【WEB面談可】
空室確認、見学、詳細を知りたい方はこちら!
お電話の際は「連合隊の物件」とお伝えください。
情報掲載期限:あと29日(更新日 2025/12/19)
- 物件写真・概要
- 周辺地図
-
【WEB面談可】
空室確認、見学、詳細を知りたい方はこちら!おすすめポイント
- 駅徒歩1分以内
- 複数路線利用可
- 駅前立地
- 駐車場あり
- OAフロア
交通色がついているアイコンをクリックすると、本物件までの道順を見ることができます。
- 宮城野通駅仙台市営地下鉄東西線駅近!徒歩1分(約29m)
- 仙台駅JR仙石線、JR仙山線、JR仙石線、仙台市営地下鉄東西線、仙台市営地下鉄南北線、秋田新幹線、東北新幹線、JR東北本線、JR常磐線徒歩8分(約596m)
物件概要
所在階/建物の階建 5階(5階) / 地上7階建 主要採光面 構造 鉄骨造 間取り 契約期間 2年間 権利金 住宅保険 お問合せください 引渡し 相談 管理人 取引態様 仲介 物件No J032 設備・特徴 - OAフロア
- 駅前立地
- 照明器具付
- 複数路線利用可
- エレベーター
- 男女別トイレ(共用部)
- 仙台駅東口エリア
- その他:個別空調 , 機械警備 , エレベータ有 2機 , OAフロア ,
備考 事務所向き 仙台駅東口エリア 主な周辺施設色がついているアイコンをクリックすると、本物件までの道順を見ることができます。
-
※連合隊は物件情報の精度向上に努めています:「物件情報に誤りがある」「成約済みである」などお気付きの点がございましたらこちらよりご連絡ください。
写真枚数:8枚












仙台市内でオフィス・店舗等の事業用賃貸物件の仲介を行っている創業30年の会社です!
貸事務所・店舗をお探しの方、またはビルオーナー様、店舗を譲りたい方、閉店したい方、不動産の事を相談したい方ぜひご連絡下さい!創業30年の経験から得た物件知識でお客様のご希望の物件を最短でお探し致します。