やまふくビル
ここに注目!申込の審査により保証会社加入をお願いする場合があります。官公庁近し。ビル開館時間6:30~21:00 変更可(要相談) 光ファイバー導入済(1Fエントランス部まで) カード式個別警備システム 巡回警備併用
| 賃料・費用 |
12万1,000円
(+管理費等 4万4,000円)
坪単価:約6,050円/坪
敷44万円仲12万1,000円
|
|---|---|
| 専有面積 | 66.12m² (20坪) |
| 住所 | 宮城県仙台市青葉区本町3丁目1-17 |
| 交通 | 勾当台公園駅(徒歩5分) |
| 階/階建 | 2階 / 6階建 |
| 築年月 | 築57年(1968年7月) |
| 駐車場 |
空き待ち
|
【WEB面談可】
空室確認、見学、詳細を知りたい方はこちら!
お電話の際は「連合隊の物件」とお伝えください。
情報掲載期限:あと21日(更新日 2025/12/16)
- 物件写真・概要
- 周辺地図
-
【WEB面談可】
空室確認、見学、詳細を知りたい方はこちら!おすすめポイント
- 駅徒歩5分以内
- エアコン付
交通色がついているアイコンをクリックすると、本物件までの道順を見ることができます。
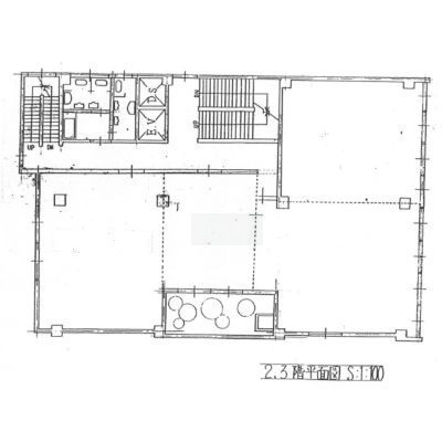
物件概要
所在階/建物の階建 2階(2F-4) / 地上6階建 主要採光面 構造 鉄筋コンクリート(RC)造 間取り 契約期間 2年間 権利金 住宅保険 お問合せください 引渡し 相談 管理人 取引態様 仲介 物件No A093 設備・特徴 - エレベーター
- エアコン付
- 中心部エリア
- 仙台駅北部エリア
- その他:セントラル空調 , エレベータ有 1機 ,
備考 仙台駅北部エリア 事務所向き 主な周辺施設色がついているアイコンをクリックすると、本物件までの道順を見ることができます。
-
※連合隊は物件情報の精度向上に努めています:「物件情報に誤りがある」「成約済みである」などお気付きの点がございましたらこちらよりご連絡ください。
写真枚数:8枚












仙台市内でオフィス・店舗等の事業用賃貸物件の仲介を行っている創業30年の会社です!
貸事務所・店舗をお探しの方、またはビルオーナー様、店舗を譲りたい方、閉店したい方、不動産の事を相談したい方ぜひご連絡下さい!創業30年の経験から得た物件知識でお客様のご希望の物件を最短でお探し致します。