仙台松村ビル
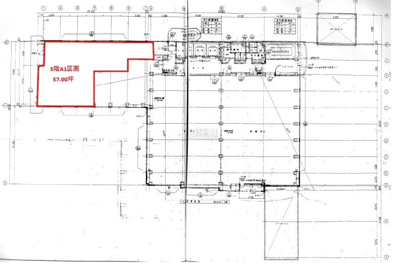
ここに注目!仙台駅北部、本町のビジネスエリアに位置する「仙台松村ビル」5階、広々とした約57坪のオフィス空間のご紹介です。 仙台市営地下鉄南北線「広瀬通駅」まで徒歩9分、JR「仙台駅」まで徒歩12分と、主要駅へのアクセスが良好で、通勤にもお客様をお迎えするにも大変便利な立地です。 周辺には郵便局やコンビニ、スーパー、銀行が徒歩圏内に揃い、日々の業務や従業員様の利便性も高まります。 天井高2600mm エントランス開閉:月~金 7:00~20:00 土 7:00~20:00 床:タイルカーペット 3階に貸会議室あり(有料)保証会社加入要
| 賃料・費用 |
68万9,700円
(+管理費等 -円)
坪単価:約1.2万円/坪
敷627万円仲68万9,700円
|
|---|---|
| 専有面積 | 188.43m² (57坪) |
| 住所 | 宮城県仙台市青葉区本町1丁目13-22 |
| 交通 | 広瀬通駅(徒歩9分)|仙台駅(徒歩12分)道順を見る |
| 階/階建 | 5階 / 8階建 |
| 築年月 | 築33年(1992年7月) |
| 駐車場 |
あり (2万7,500円/台)
敷金2ケ月あり 立体駐車場(車のサイズあり) |
【WEB面談可】
空室確認、見学、詳細を知りたい方はこちら!
お電話の際は「連合隊の物件」とお伝えください。
情報掲載期限:あと23日(更新日 2026/2/25)
- 物件写真・概要
- 周辺地図
-
【WEB面談可】
空室確認、見学、詳細を知りたい方はこちら!おすすめポイント
- 駐車場あり
- OAフロア
- 24時間セキュリティー
交通色がついているアイコンをクリックすると、本物件までの道順を見ることができます。
- 広瀬通駅仙台市営地下鉄南北線徒歩9分(約713m)
- 仙台駅JR仙石線、JR仙山線、JR仙石線、仙台市営地下鉄東西線、仙台市営地下鉄南北線、秋田新幹線、東北新幹線、JR東北本線、JR常磐線徒歩12分(約885m)
物件概要
所在階/建物の階建 5階(5階) / 地上8階建 主要採光面 構造 鉄骨造 間取り 契約期間 2年間 権利金 住宅保険 お問合せください 引渡し 相談(2025年12月6日) 管理人 取引態様 仲介 物件No A082 設備・特徴 - エレベーター
- OAフロア
- 24時間セキュリティー
- 男女別トイレ(共用部)
- 中心部エリア
- 仙台駅北部エリア
- その他:個別空調 , 機械警備 , エレベータ有 3機 ,
備考 事務所向き 仙台駅北部エリア 賃貸保証契約加入必須 主な周辺施設色がついているアイコンをクリックすると、本物件までの道順を見ることができます。
-
※連合隊は物件情報の精度向上に努めています:「物件情報に誤りがある」「成約済みである」などお気付きの点がございましたらこちらよりご連絡ください。
写真枚数:7枚












仙台市内でオフィス・店舗等の事業用賃貸物件の仲介を行っている創業30年の会社です!
貸事務所・店舗をお探しの方、またはビルオーナー様、店舗を譲りたい方、閉店したい方、不動産の事を相談したい方ぜひご連絡下さい!創業30年の経験から得た物件知識でお客様のご希望の物件を最短でお探し致します。